Not On Site
Property Description
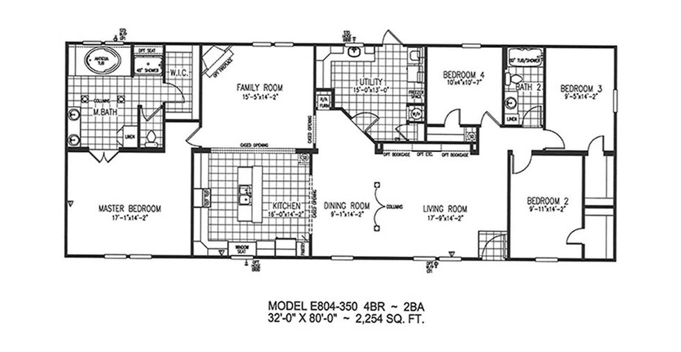
Meet the Boho — a beautifully crafted 4-bedroom, 2-bath double-wide with generous floor plan and estate-level space (approx. 2,254 sq ft). The home features a bright, open living and dining area seamlessly connected to a large country-style kitchen with island. A grand layout ideal for family living or entertaining, plus a utility/multipurpose room adds flexibility. The master suite is privately placed, giving peace and privacy away from guest or secondary bedrooms.
Property Details
Property Type
Double wide
Bedrooms
4
Bathrooms
Size
Built by:
2
2,255 sqft
Cavco
Interested in this home?
Click on the link below to view all the details about this home.
You can take a virtual tour and check your eligibility to see if you qualify
For additional information
Learn more about manufactured homes in South Carolina and why buyers trust Ken-Co Homes.










